Comitatoterritoriale.it HOME RICERCA LOGIN REGISTRATI
Benvenuto, Visitatore. Per favore, effettua il login o registrati.
Nome utente:
Password :
Password dimenticata? Clicca qui
 
Forum » Italia » Liguria » Provincia di Savona » Comitati di 17031-Albenga » Comitati di Leca » NEW - NUOVA VITA DELLE OPERE PARROCCHIALI - I° ATTO
 
 
Bookmark and Share Risposta Invia questo topic Stampa
2008-10-16 20:28
Topic: NEW - NUOVA VITA DELLE OPERE PARROCCHIALI - I° ATTO
Citazione
Autore : Enrico Isnardi
Posts :
 
Invia in email Invia un messaggio personale compat_enrico
NEW - NUOVA VITA DELLE OPERE PARROCCHIALI - I° ATTO


UN NIDO DA 36 POSTI + OPPORTUNITA' DI LAVORO

Premessa:

Seguendo le orme dei nostri nonni e padri abbiamo realizzato un altro sogno.
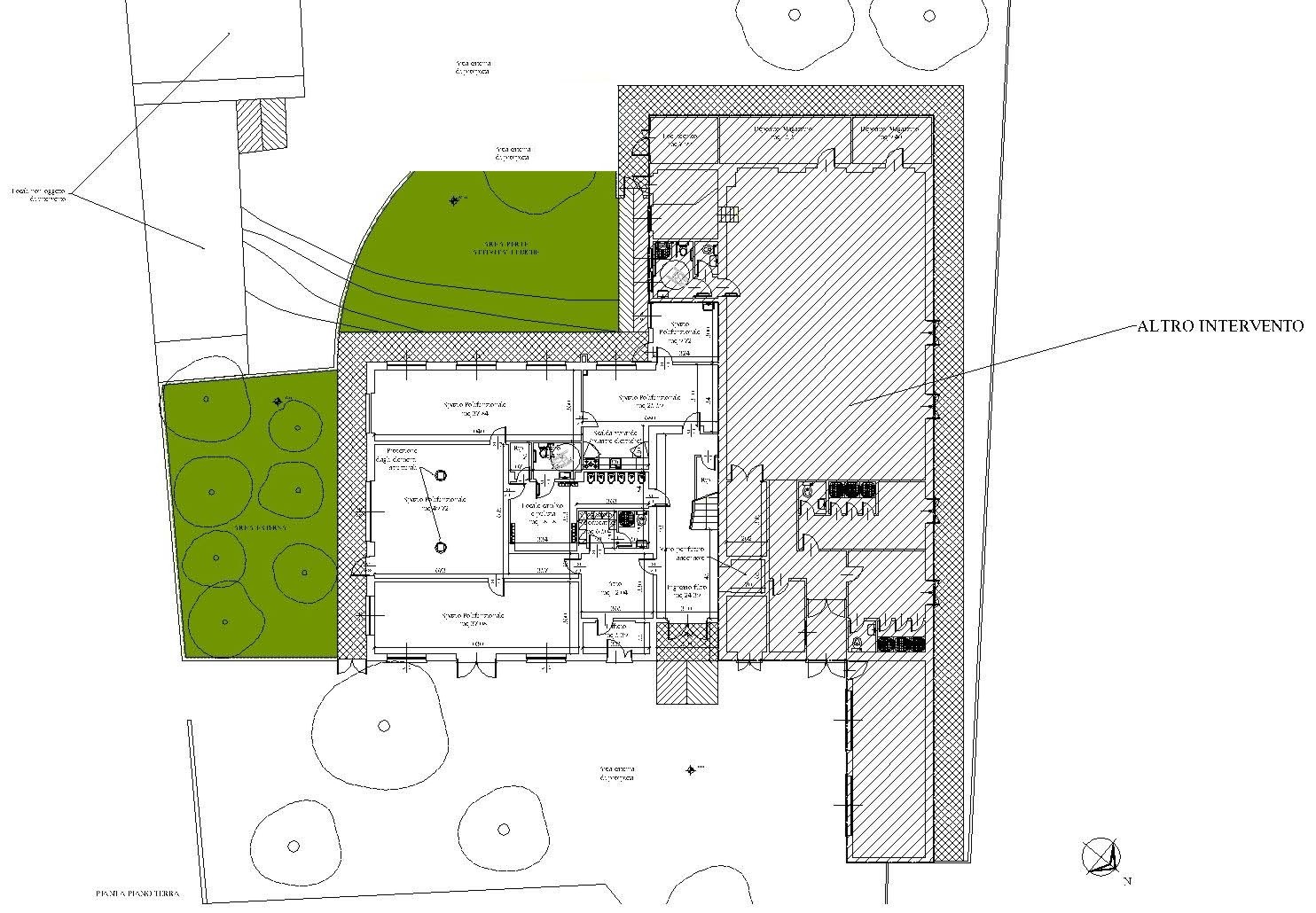
Sono finalmente iniziati i lavori per la ristrutturazione dei locali della Parrocchia N.S. Assunta di Leca per l’istituzione di un Asilo Nido d'Infanzia per 36 posti (tempo pieno) per bambini dai 12 mesi +1 giorno, coordinato e costituito da personale con titoli di studio e formazione specifica.
I locali della Parrocchia, costruiti con impegno e fatica dai cittadini di Leca, torneranno a nuova vita e daranno alla comunità un ampliamento dell’offerta educativa, affiancandosi alle strutture già esistenti: scuola materna, scuola primaria e secondaria. Un’agevolazione per le famiglie della comunità che avranno questo importante servizio vicino a casa e un contributo a tagliare le sempre più lunghe liste d’attesa degli asili comunali.

La Parrocchia di Leca, il Gruppo Famiglia, la Società Aurora, la Società Unione Sportiva e il Comitato di Leca, affiancati da esperti e volenterosi professionisti, hanno creduto a tal punto in questo progetto da presentarlo anche a Regione Liguria, ottenendone un finanziamento.

Così, dopo cinquant’anni, la comunità di Leca torna a costruire il proprio Asilo: i lavori di smantellamento e ristrutturazione sono iniziati, i cittadini e le imprese si sono nuovamente rimboccati le maniche per dare il loro contributo volontario alla nascita di un nuovo sogno che crescerà sulle fondamenta di quello dei loro antenati.

L’edificio, progettato nei minimi particolari per il rispetto di tutte le norme e dotato di pannelli solari e impianti a basso consumo energetico, non ospiterà solo l’Asilo Nido, abbiamo un programma ben più ambizioso.
Le successive fasi di ristrutturazione, infatti, prevedono anche la predisposizione di sale per le associazioni, spazi per la Catechesi ed il doposcuola, fino ad arrivare alla predisposizione di una casa-vacanza.
Tutte attività che richiederanno il prezioso contributo dei volontari che, siamo sicuri, non mancheranno.

Chiunque desideri collaborare al progetto può contattare il Comitato di Leca o il promotore dell'iniziativa.
Enrico Isnardi Cell. 3388553668





Struttura (1,640.80 KB, 2592 x 1944 px)
Gruppo Famiglia (120.02 KB, 1751 x 1186 px)

 

« Ultima modifica : 2008-10-19 20:41 da Enrico Isnardi »
 
Risposta #1 il: 2008-10-22 22:49
Citazione
Autore : Comitato di Leca
Posts : 41
 
Invia un messaggio personale
Recensione SUL SECOLO XIX

Questo articolo è stato pubblicato il 29 Giugno 2008


Leggi Articolo : Asilo Nido a Leca (402.63 KB, 918 x 1136 px)
Zoom su : Progetto Asilo (340.50 KB, 1484 x 1030 px)



« Ultima modifica : 2008-10-22 23:11 da Comitato di Leca »
 
  Risposta Invia questo topic Stampa